• モノづくりとアイデアで暮らしを豊かに。『STAGEA』

    大きなロビーに大きな和室。
    サウナ付きの大きなお風呂など
    旅館ならではの設えを暮らしにプラス。
    いつまでも感動が続くよう、
    飽きのこないデザインにお仕立てしました。

    民宿を思わせる前室や広縁付きの大きな和室。
    2〜3人が同時に使えるサウナ付きの大きな浴室は、
    階段下となる屋外に水風呂や涼み場も設えました。
    天窓付きで心地よい陽の光が差し込むロビーは、
    死角を利用することで収納スペースとして使えるフロントカウンターまで再現。
    和室が飽きたら、カーペット敷きの洋間に置かれたベッドでお休みいただければ気分転換になります。洋間は広々と使えるルーフバルコニー付き。

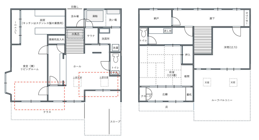
    床面積:1階 122.16㎡ 2階:103.86㎡(延床面積226.02㎡)
    構造・規模:軽量鉄骨構造2階建て
    建築費:1億0512万円〜1億0760万円(目安)
    ※建築費は敷地の状況により変動する場合がございます。
    最終的なお見積もりは積水ハウス株式会社からご案内いたします。
    また、お支払い先は全額積水ハウス株式会社となります。


    (1)玄関アプローチ

    玄関アプローチは幅約3m x 奥行4メートル。
    単なる出入口にとどまらず、住宅にもてなされている感覚になります。
    テラス側の壁に植栽スペースを設けたり、夏冬を問わず安らぎを感じるウォーターウォールを設ける、漆喰壁を設えるなどデザインやアイデア次第でより魅力的な空間となります。
    余裕あるスロープも設けていますので、将来も安心です。
    玄関ドアを和風の引き戸からガラスの引き戸に変更することで、より旅館のような佇まいにすることができます。
    *玄関ドアをガラス戸に変更する場合、ホールが外から見通せる状態になります。
    お住まいいただく方のプライバシーはもちろん、向かい合う住宅にお住まいになられる方に対する配慮も必要となります。


    (2)ホール

    天窓付きのロビーは採光を得るだけでなく、季節の移り変わりを楽しむこともできます。
    冬は暖かい陽射しが降り注ぎ、梅雨時はガラスを打つ雨を眺めながら季節を感じます。
    ロビーに置いたソファーセットに もたれかかりながら日向ぼっこをする時間は至福のひと時となるでしょう。
    *夏季はルーフバルコニーの採光部にカバー等を掛けて日差しをシャットアウトします。


    (3)浴室入口

    浴室入口前は目隠し壁を設置しました。
    中に入れば一緒だが、左右の開口部それぞれに男女の暖簾を掛けることで、民宿気分がさらに高まります。


    (4)お手洗い

    構造上の都合で縦長になったトイレは、手洗いとしては十分なサイズの洗面台を採用しました。


    (5)カウンター

    フロントを模したカウンターを設えました。
    背面にはキーボックスを模したコレクション棚のほか、集中監視盤(火災報知設備)も設置。
    生活では明らかに不要なものとなりますが、旅館の雰囲気を醸成する上で必要不可欠なものとなりますが、カウンターの下など死角となる場所に収納棚や段ボール箱などを置くことでオフシーズンの衣類やスポーツ用品などをしまっておくことができます。
    お客様をお招きした時は、バーカウンターとしてもご利用いただけます。


    (6)洗面所

    洗面所の床は温泉旅館で採用される籐のタイルを採用。
    どうしても生活感が出てしまう洗濯機は、目立たないスペースに収納しました。
    ご希望があれば洗濯スペース上半分を棚に仕立てて洗濯機の存在感をさらに小さくすることも可能です。(その場合、横から洗濯物を投入するタイプの洗濯機に機種が限られます。)
    ※洗濯機を折戸で隠すこともできます。


    (7)浴室

    浴室の洗い場は2名横並びでご利用いただけます。
    日常的に複数名でのご入浴をお考えならとても便利です。
    湯船は現実的な範囲(家庭用の熱源機で使うことや、ランニングコストも考えなければなりません。)で可能な限りで広く確保した1.2m x 1.8mサイズを採用。
    湯船の淵を歩けば左手にサウナ、そのまま屋外に出れば外気で涼むこともできます。
    夏場はお子様を遊ばせるのにちょうど良い水風呂も用意いたしました。

    大きな湯船は、熱源コストも割高となります。
    お湯張りをする手段として考えられる代表的な機器として、普及品のガス熱源機(給湯器)のほか、太陽熱温水器、電気温水器、エコキュートのほか、24時間風呂装置などがあります。
    どれを採用するかは、実際のお風呂の使われ方で決定いたします。
    なお、体感的な広さと湯量削減を両立させるため、短手側の半分を底上げし、寝湯(長手方向に寝て楽しむお風呂)にすることも方法の一つです。
    コンビニエンスストアの底上げカレー弁当のような形状をイメージいただければわかりやすいと思います。


    (8)キッチン

    キッチンはステンレス製の業務用設備を採用しました。
    見た目の満足はもちろん、背面のカウンターも含めれば巨大なワークスペースは作業性がよく、料理や片付けの負担を大きく減らします。
    ステンレス製のキッチンは、人造大理石のように使い込むにつれて汚れが沈着することがなく衛生的であるのはもちろん、熱や衝撃に強く使い勝手が良いです。
    ※ご希望があれば普及品のキッチンユニットを選択することも可能です。


    (9)フロント内清掃用具入れ

    掃除道具や住宅用洗剤、トイレットペーパーの収納などを想定した、約1m x 2mの収納を設けました。
    入口扉は、実際の旅館等で従業員用出入口などに採用されている鉄製・白無地の防火扉を採用。
    細部にもこだわります。
    *非常口サイン等も設置します。


    (10)階段

    階段幅および2階の廊下幅は余裕の2メートル。民宿と比べても遜色ありません。


    (11)カウンター

    2階廊下突き当たり奥には花などを活けるのに適したカウンターを設置。
    カウンターが不要であれば、洋間の入口を階段側に寄せて洋間からアクセスできる洗面所・お手洗いに変更することもできます。
    *但し、多くの窓が並ぶ長い廊下は、宿のエッセンスの一つとなるため、廊下を短くすると旅館っぽさは損なわれます。


    (12)前室

    和室入口には和洋折衷の違和感を緩和するのと同時に和室の風格を高める前室付き。
    流し台を設置しているため、コーヒーを淹れたり趣味などで手を汚しても洗面所やキッチンに足を運ぶ必要がないばかりか、お手洗いも設置しているため、室内で完結することができます。
    家族が立ち入るスペースとの間に壁が2枚あることで籠(こも)り感を出すことができ、これがもたらす安心感は休息の密度を高くします。


    (13)和室

    和室は広さに圧巻の12.5畳。
    和室を設けない家庭が増える中で、洋室リビングと同じ規模の空間が全て畳となるこの空間は、非日常のものとなるでしょう。
    お布団を並べたら、思わず枕投げがしたくなるはずです。
    花などを活けて楽しんだりテレビを置くのに丁度良い板間や、大容量の押し入れなども備えました。
    広縁との間仕切りは障子を予定していますが、枕投げをされるお客様には頑丈な樹脂入りの和紙に変更することも可能です。


    (14)広縁

    幅約1.5メートルのゆとりある広縁は、前室の存在とあわせて旅館に滞在しているような気分にさせてくれます。
    ローテーブルを囲むように1人がけの椅子2脚置けば、まさに旅館そのもの。
    座敷での姿勢に飽きたらここで気分転換できます。
    両端にはクローゼットと書机を用意いたしました。


    (15)洋間

    お部屋の中央にセミダブルベッドを2台並べて広々とご利用いただける洋間仕立てのお部屋です。
    お休み前に晩酌や読書が楽しめるよう、カフェテーブルなどを置いてくつろぐスペースを用意いたしました。


    (17)庇

    2階和室の腰高窓の外には、人が歩けるように作られた庇があります。
    春は桜の花びらが、晩秋は落ち葉が庇の上面や排水口周辺に積もり、広縁に立ちながらその光景を目にした時、季節の移ろいを感じられることでしょう。
    こちらも、窓の掃除や設備の点検のため、実際のホテルや旅館に設えていることが多く、記憶にある方も多いと思います。
    ※お手入れが面倒(危険)であるなら、なくすこともできます。
    ※転落の危険があるため、日常的な立ち入りはしないでください。特にお子さまが活発すぎる性格ならば、設置を見合わせてください。


    参考プラン

    こちらのプランでは、食堂とホールを区切ったプランとなります。
    日常的な光熱費を削減したい場合にお奨めです。
    また、カウンタースペースの奥行は図面では狭く見えても約2mありますので、1坪バス(1818)の設置ができます。
    大浴場のご利用を週末だけにすることで、お手入れや光熱費の負担を抑えることが可能です。
    入口に上がり框を設けず1階を土足としたり、和風の扉をやめてガラス製の自動ドアにすることで、さらに旅館っぽさを出すことができます。
    カウンセリングや商談を伴うご商売や、ご近所の方との語らいに適しています。
    ご商売をされる場合、ホールを商談スペースにして2階洋間を作業場、生活を和室で完結させるという使い方も良いと思います。