唄う、観る、踊る。
家に帰れば、いつも物語の主人公。
お芝居や音楽をこよなく愛するご家族に贈る
とっておきの一棟をお仕立ていたしました。

住宅として現実的な建築面積に本格的な劇場に迫る設備を可能な限り設えた、劇場や映画などが好きな方にお勧めの一棟です。
2階部分で生活の大部分を完結させる設計思想とすることで、現実的な規模にとどめることができました。

※この間取り図はクローゼットを省略しておりますのでご注意ください。
床面積:1階 109.94㎡ 2階:92.63㎡(延床面積202.57㎡)
構造・規模:軽量鉄骨構造(敷地の状況により重量鉄骨構造)2階建て
建築費:9,648万円〜1億0040万円(目安)
※建築費は敷地の状況により変動する場合がございます。
最終的なお見積もりは積水ハウス株式会社からご案内いたします。
また、お支払い先は全額積水ハウス株式会社となります。
※大階段の傾斜角や踏面の奥行等の仕様は建築基準法に適合するものとなります。
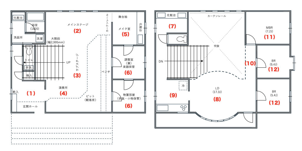
玄関ホールは、一般的な住宅のベッドルームの面積に迫る5.4帖。
正面の壁は、楽器や衣装などを飾ったり展示するのに最適です。
ステージのような小上がりを設けることも可能です。
劇場内部の廊下からホールに入った瞬間、目の前に広がる大空間を見た時、心踊る経験をされたことも多いでしょう。
このような感動を大きくするため、ここでは敢えて吹き抜けにしません。
比較的落ち着いた配色に仕立てて、メインの照明はダウンライトや間接照明にするなど、キラキラさせすぎないことがポイントです。
メインステージは最も広い部分で奥行3メートルを確保。
奥行きのあるダイナミックなダンスや演技が堪能できます。
メインステージと直角につながるサブステージは、シーンの切り替えをスムースにします。
また、メインステージを補佐する役割を持たせているため、大人数でのシーンも狭さを感じさせません。
奥行は約2メートルあるため、メインステージを補佐するエリアとしては充分な広さがあります。
演者が客席に迫る圧巻のシーンを再現するのに欠かせないエプロンステージや、カーテンコールを一層感動的に仕立てる大階段なども限られた面積の中で再現しました。

ホールのイメージ(CG制作中)
玄関側に確保した演奏所は、弦楽器4名、管楽器2名、打楽器1名、ピアノ1名が同時演奏できることを目標に設計しました。
演奏メインであればメインステージの後ろ半分を奏者スペースにすることで、最低限のオーケストラが構成できます。
*階段下やメインステージの隅まで活用します。階段下は這って入る必要があります。
*オーケストラを行う場合、防音工事をご用命ください。
また、心おきなく演奏できるようにするためハウスインハウス(建物内に独立した建物を作る構成)のご提案もさせていただきます。
舞台横には観客席から見えない場所に舞台袖を設置。
お色直しができるよう化粧台やお着替えができるスペースを用意しました。
ステージを華やかにするために必要な照明機材(コントローラ)や音響設備を設置することを想定したお部屋です。
その他にも楽器や衣装など、道具の種類ごとに収納する部屋が使い分けできるようにお仕立てしました。
舞台袖から連続した場所にあるため、使い勝手も良好です。
ホールに出る扉はピットと段差があるため、非常用を想定しており中からしか開かないようにできています。
ご希望があれば外から開けることができるように取り付けることも可能です。
化粧台は2人並んで使うことができます。
舞台人として高く志すべきものは、演技やダンスなどのテクニカルにとどまりません。
演技やダンスに高い技術力が要求される数多くの理由の理由の一つに、観る人に楽しんでいただくことを生業とする精神を育てることです。
美へのこだわりも志を高く持ち続けることが必要です。
数多くのメイク用品を種類ごとに整理できる機能的な収納を設けて、さらには鏡には様々な環境下での見栄えを確認できるよう、プログラマブルRGB照明を用意いたしました。
水銀燈・ハロゲンライト・太陽光・電球の光の再現のほか、色温度やRGBの微調整といった光の色の調整はもちろん、直上からの光、鏡面からの光など照明の位置も手元のコントローラで切り替えることが可能です。
1階吹き抜けのステージを見渡す2階リビングは、劇場の2階席(メザニン席)をモチーフとしていて開放感抜群。
窓側に設置した大型スクリーンを降ろして天吊りのプロジェクタから映像を投影すれば、海外のホテルやディズニーリゾートで見られるようなディナーショー気分を楽しむことができます。

リビングのイメージ(CG制作中)
美味しい料理は、ディナーショー気分をさらに高めます。盛り付け用のテーブルを置いてもまだ広々使える5.4帖の広いキッチンスペースは、300サイズの大型ユニットを採用。メインディッシュはもちろん、スナック類も素早く調理して用意することができます。
日常の生活は、2階で完結するように設えています。
吹き抜けに1メートルオーバーハングさせることで作った通路はステージ全体が見渡せて歩くのが楽しくなります。
また1階は劇場さながらの庇のあるホールが本物の劇場や映画館を想起させ、ワクワク感を高めます。
ご夫婦のお部屋を想定した主寝室は2階廊下のオーバーハングと連続させることで他の寝室より1メートル程度広く確保した7.2帖。
生活に必要な衣類のみこの部屋に収納して、よそ行きのお洋服は1階衣装室に収納することで必要面積を抑えることができます。
子ども部屋を想定したお部屋は2室用意いたしました。